 
								
				
				
			한들타워1 (4,805세대 정문앞)
				상가
				
				시행사
					주식회사 이공
				시공사
					주식회사 이공
				세대수/점포수
					80점표
				분양규모
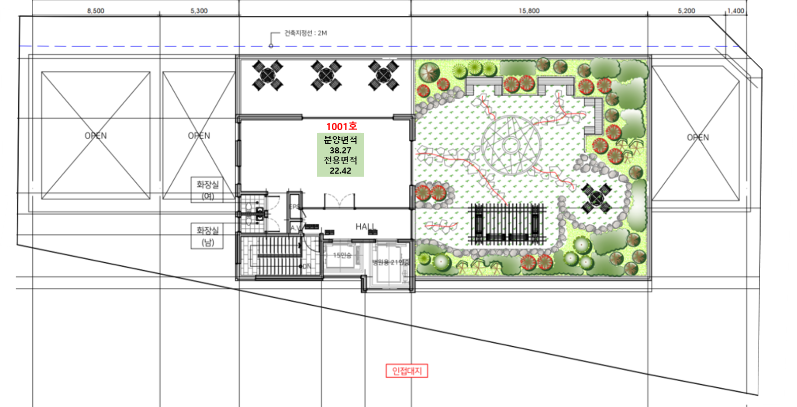
					지하2층 ~ 지상10층
				분양가
					787,000,000 원
				계약금
					118,050,000 원
				실투자금
					250,000,000
				수익률
					10%
				준공일
					2023년 7월
				위치정보
			
			
				
				
				
		이미지 겔러리
			
		상세설명
			
					*** 4,805새대 대단지 아파트 정문앞 첫 분양상가 ***
※ 상기 분양가는 1층 기준이며 소액투자도 가능합니다. 상층부도 분양중입니다.
◆위치 : 인천 서구 한들지구 검암로얄파크시티(4,805세대)정문 앞
◆규모 : 지하2층~지상10층
◆권장업종 : 약국, 편의점, 안경점, 커피숍, 헤어샾, 프랜차이즈, 병의원, 학원, 스크린골프, 휘트니스, 당구장, 노래방, PC방 등등
◆특장점 :
-한들지구 아파트 정문(횡단보도)바로 앞이며 버스정류장 앞 상가!!!
- 주변세대수 대비 상업지의 절대적 부족으로 희소가치와 프리미엄이 높음!!!
-한들지구 내 첫번째로 입주하는 상가로 모든업종의 우선 선점의 기회!!!
◆상세내용 :
신규 분양물건으로 로얄파크시티 푸르지오아파트가2023년6월에 입주예정입니다.
저희 상가는2023년7월 준공 예정으로 아파트 입주시기와 비슷한 첫번째 입주상가입니다.
아시다시피 한들지구는 배우 이병헌씨가 광고했던 아파트단지 입니다.
저희 상가는 한들지구에서 첫번째로 선보이는 최초상가로서 모든업종의 선점이 가능합니다.한들타워1 상가는 메디컬&아카데미 상가로써 주변의 랜드마크가 될 것입니다.
아파트 단지 정문 횡단보도 바로앞에 위치한 탁월한 입지의 상가이며 상가 바로앞에 버스정류장이 있어 유동인구 확보도 최고입니다.
병원은 특별상담 가능하며 분양/임대 진행 중입니다.
☞약국자리 특별상담 : 한시적으로 특별분양을 진행하고 있으며 병의원 입점 조건부계약이 가능합니다.
			※ 상기 분양가는 1층 기준이며 소액투자도 가능합니다. 상층부도 분양중입니다.
◆위치 : 인천 서구 한들지구 검암로얄파크시티(4,805세대)정문 앞
◆규모 : 지하2층~지상10층
◆권장업종 : 약국, 편의점, 안경점, 커피숍, 헤어샾, 프랜차이즈, 병의원, 학원, 스크린골프, 휘트니스, 당구장, 노래방, PC방 등등
◆특장점 :
-한들지구 아파트 정문(횡단보도)바로 앞이며 버스정류장 앞 상가!!!
- 주변세대수 대비 상업지의 절대적 부족으로 희소가치와 프리미엄이 높음!!!
-한들지구 내 첫번째로 입주하는 상가로 모든업종의 우선 선점의 기회!!!
◆상세내용 :
신규 분양물건으로 로얄파크시티 푸르지오아파트가2023년6월에 입주예정입니다.
저희 상가는2023년7월 준공 예정으로 아파트 입주시기와 비슷한 첫번째 입주상가입니다.
아시다시피 한들지구는 배우 이병헌씨가 광고했던 아파트단지 입니다.
저희 상가는 한들지구에서 첫번째로 선보이는 최초상가로서 모든업종의 선점이 가능합니다.한들타워1 상가는 메디컬&아카데미 상가로써 주변의 랜드마크가 될 것입니다.
아파트 단지 정문 횡단보도 바로앞에 위치한 탁월한 입지의 상가이며 상가 바로앞에 버스정류장이 있어 유동인구 확보도 최고입니다.
병원은 특별상담 가능하며 분양/임대 진행 중입니다.
☞약국자리 특별상담 : 한시적으로 특별분양을 진행하고 있으며 병의원 입점 조건부계약이 가능합니다.
 
					

















